Rustico/Casale in vendita a Niella Belbo

In vendita
Rustico/Casale
Niella Belbo
345.000 €
Descrizione
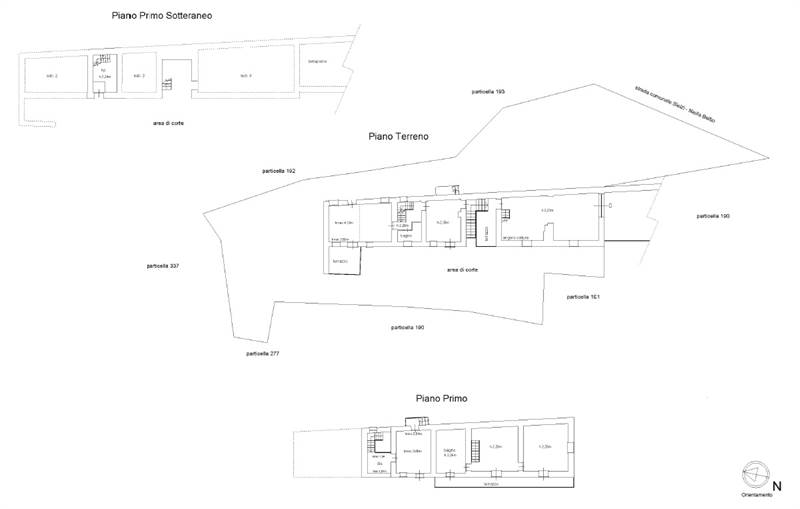
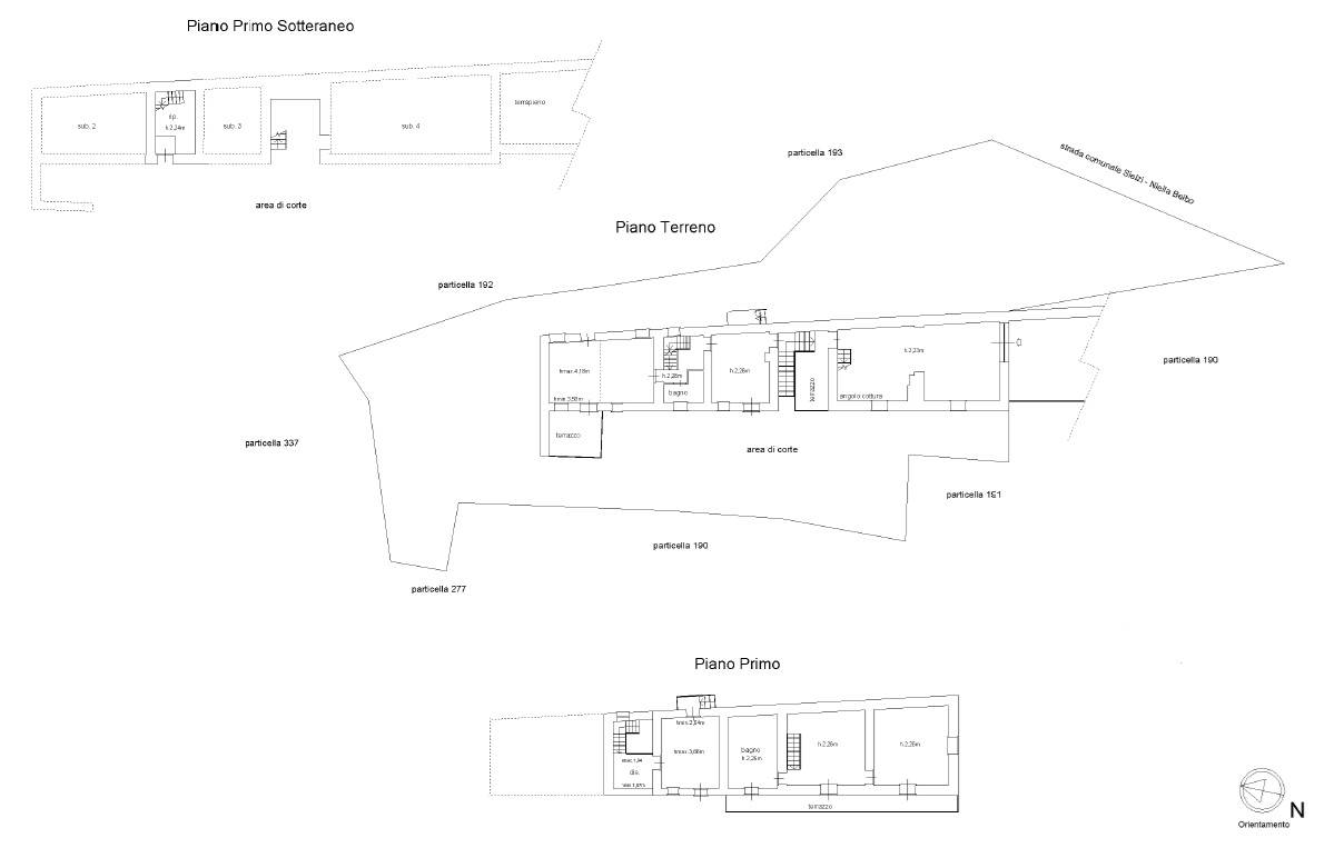
Alta Langa - Autentico cascinale in pietra ottimamente conservato. Gli interventi di ristrutturazione effettuati negli anni sono stati volti a rispettare e valorizzare il fascino del passato. Qui si respira un'atmosfera unica, semi montana, rurale. Il fabbricato ha diversi accessi e può avere finalità turistiche. È composto da una prima unità abitativa posta su due livelli: piano terra con cucina, soggiorno ed ampia terrazza vivibile collegata al giardino; piano primo con salotto, camera da letto, bagno e lungo balcone in legno posto sul lato a valle.
E da una seconda unità, con accesso indipendente ma anche collegato alla prima unità tramite terrazza coperta abitabile, composta da openspace con camera da letto soppalcata, due camere e bagno. Al piano seminterrato vari locali di servizio, bagno e cantine. Giardino terrazzato ed attrezzato mantenuto con cura, così come l'area circostante, piscina naturale. Acqua sorgiva. Un gioiello tra le nostre colline.
Il cascinale dista meno di 2 km dal centro del paese di Niella Belbo (due bar, due ristoranti, una farmacia, un ufficio postale, negozi e una macelleria) raggiungibile con comoda strada asfaltata, ed è circondato dal terreno di proprietà di circa 20.180 mq.
Dista circa 35 km da Alba e 50 km da Savona.

Caratteristiche principali
Codice:
V000817
Città:
Niella Belbo
Categoria:
Rustico/Casale
Locali:
15
Camere:
4
Bagni:
3
Mq:
300
Mq Giardino:
20180
Balconi:
1
Terrazzi:
2
Classe energetica:
G
Stato Immobile:
Ristrutturato
Posizione:
Collina
Panorama:
Vista Aperta
Lati Liberi:
4
Giardino:
Privato
Accessori
Canna Fumaria
Doppi Vetri
Ingresso Indipendente
Porta Blindata
Mappa
via madonna, 1 - Niella Belbo (CN)
Video
Cookie preference